
Informacje są aktualne na dzień 8 marca 2024
Informacje dotyczące cen, dostępności mieszkań oraz szczegółów transakcji mogą się różnić w zależności od czasu. Aktualizacje mogą nie nadążać za tymi zmianami.
Prosimy o kontakt z działem sprzedaży dewelopera, aby uzyskać najświeższe informacje i szczegółową propozycję.
Zgłoś błąd
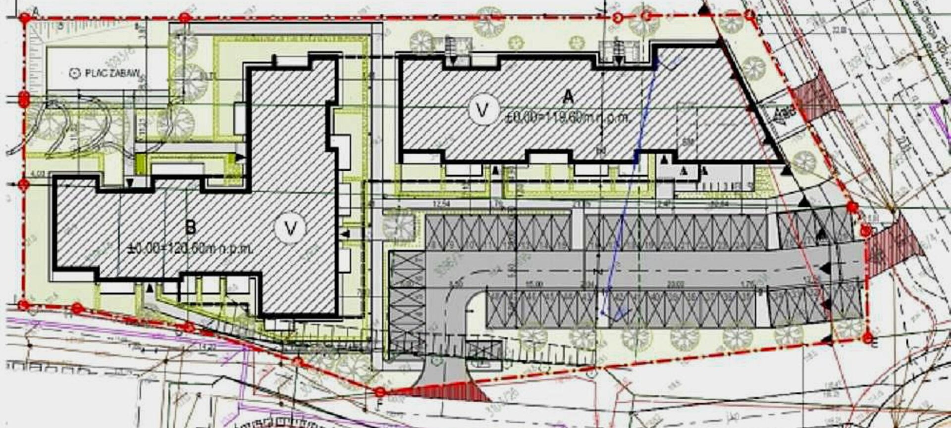
Osiedle Ostrovia to zespół dwóch 4-piętrowych wielorodzinnych budynków mieszkalnych w Ostrowi Mazowieckiej, w północno-wschodniej części województwa mazowieckiego.
Inwestycja ulokowana jest na ogrodzonym i całodobowo monitorowanym terenie, wyposażonym w ciągi komunikacyjne oraz trawniki. Na terenie wydzielono strefę zabaw dla dzieci. Pod budynkami zaprojektowano halę garażową na 44 miejsca. Naziemna strefa parkingowa zawiera stanowiska na 48 pojazdów. Każda klatka schodowa wyposażona jest w windę. Dla potrzeb lokatorów przewidziane są komórki gospodarcze. Inwestycja przyjazna jest dla seniorów i osób niepełnosprawnych.
Kompleks osiedlowy tworzą bloki o płaskich dachach z prostej bryły na nieregularnym planie. Budynki posiadają 5 kondygnacji nadziemnych oraz 1 kondygnację podziemną. Projekt wyróżnia układ okienny oraz stonowana w ciepłych odcieniach kolorystyka elewacji, połączona z drewnem i surowym betonem.
Osiedle usytuowane jest przy ul. Trębickiego, w sąsiedztwie rozległych terenów zielonych i stawu miejskiego, a jednocześnie blisko centrum miasta.
W odległości 1,5 km od inwestycji zlokalizowany jest węzeł komunikacyjny na skrzyżowaniu drogi ekspresowej S8, łączącej aglomeracje wrocławską, łódzką, warszawską i białostocką, w ciągu drogi krajowej nr 8, z kolei łączącej województwa dolnośląskie, wielkopolskie, łódzkie, mazowieckie i podlaskie.
W pobliżu inwestycji zlokalizowane są sklepy spożywcze Biedronka (260 m), Żabka (280 m), supermarket Lidl (420 m), Targowisko, Drogeria Rossmann, myjnia bezdotykowa, W bliskiej okolicy położone są kościół rzymskokatolicki, Muzeum Dom Rodziny Pileckich, Scena Kotłownia. Kino Ostrovia oddalone jest o 800 m.
Najbliższe do osiedla ośrodki edukacyjne to są Przedszkole nr 1 Miejskie (450 m) i Szkoła Podstawowa nr 1 im. Tadeusza Kościuszki (130 m). W mieście istnieją szkoły ponadpodstawowe, w tym Liceum Ogólnokształcące im. Mikołaja Kopernika (1 km).
Nieopodal znajduje się apteka, gabinet stomatologiczny, przychodnia okulistyczna, gabinet masażu i hippoterapii, NZOZ pielęgniarska opieka domowa.
Bezpośrednio w sąsiedztwie inwestycji znajduje się Miejski Ośrodek Sportu i Rekreacji z Pływalnią i parkiem wodnym, boiskiem wielofunkcyjnym oraz lodowiskiem. W odległości 500 m znajduje się Ogródek Jordanowski.
1,2 kmGotowe
29 - 88 m²
1 - 4
3,3 kmGotowe
30.06 - 72.33 m²
2 - 3
36,9 kmGotowe
56 - 76 m²
3 - 4
37,4 kmGotowe
28 - 71 m²
1 - 4
37,4 kmGotowe
32 - 101 m²
1 - 4
38,8 kmGotowe
38 - 97 m²
1 - 4
39,7 kmIII Kwartał 2023
29.38 - 134.78 m²
1 - 4
39,7 kmIII Kwartał 2023
33.69 - 75.95 m²
1 - 4
58,0 kmGotowe
25.66 - 81.61 m²
1 - 4